- Woonoppervlakte
- Circa 88 m²
- Perceeloppervlakte
- Circa 197 m²
- Bouwjaar
- Gebouwd in 1936
- Aantal kamers
- 4 kamers (3 slaapkamers)
Op zoek naar een woning met karakter én comfort?
Aan de Elferinksweg 36 vind je een goed onderhouden twee-onder-een-kapwoning uit de jaren ’30 met een warme uitstraling, moderne voorzieningen en een heerlijk gevoel van ruimte. De woning combineert het sfeervolle karakter van toen met het wooncomfort van nu. Gelegen in de geliefde wijk ’t Stadsveld woon je hier rustig en groen, met winkels, scholen en speeltuinen om de hoek. De binnenstad van Enschede en de A35 bereik je in slechts enkele minuten.
Sfeer en leefruimte.
Zodra je binnenkomt, valt direct de fijne sfeer van deze woning op. De woonkamer met karakteristieke erker zorgt voor een warme, lichte uitstraling en biedt een gezellige plek met uitzicht op de straat. De ruime woonkeuken vormt samen met de woonkamer één geheel, waardoor een open en huiselijke leefruimte ontstaat. De keuken vernieuwd in 2019 en centraal gelegen op de begane grond – is echt het hart van het huis. Terwijl je kookt, heb je contact met de woonkamer én zicht op de tuin, wat het een ideale plek maakt voor samenzijn met familie of vrienden. Dankzij de grote raampartijen en de openslaande tuindeuren aan de achterzijde is er veel daglicht en loopt binnen moeiteloos over in buiten. Op een zonnige dag zet je de deuren open en geniet je van het buitenleven in je eigen tuin – een verlengde van de leefruimte binnen.
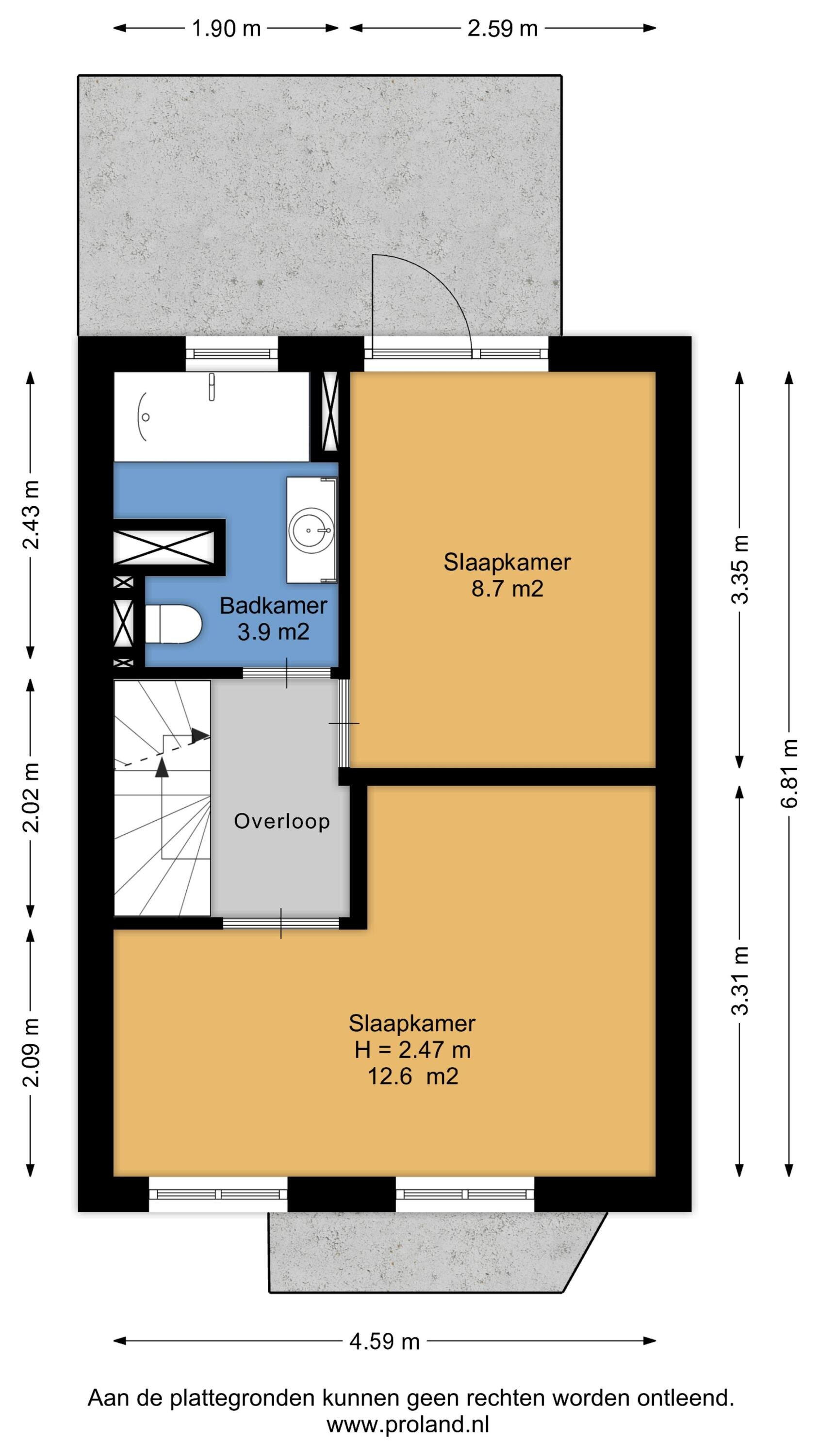
Slaapkamers en badkamer
Op de eerste verdieping bevinden zich twee ruime slaapkamers en een moderne badkamer (2021) met bad, inloop douche, toilet en wastafelmeubel. Via een vaste trap bereik je de tweede verdieping, waar een royale zolderkamer (ca. 16 m²) is gerealiseerd, momenteel in gebruik als slaapkamer. De dakkapel (2021/2022) zorgt voor extra licht en ruimte – perfect als hoofdslaapkamer, werkkamer of hobbyruimte.
Genieten van buiten
De woning ligt iets verder van de weg, waardoor je dankzij de voortuin en de brede stoep geen last hebt van het verkeer. Aan de achterzijde vind je een ruime, zonnige tuin, bereikbaar via een eigen achterom naast de woning. De tuin ligt op het noordoosten, maar is royaal van formaat, waardoor je de hele dag door kunt genieten van de zon. Achter in de tuin staat een houten schuur, ruim genoeg voor het opbergen van fietsen en tuingereedschap. Aangrenzend bevindt zich een ruime overkapping aan de voorkant van de schuur een heerlijke plek om met vrienden en familie te ontspannen en te genieten van lange zomeravonden. Vanuit de woning stap je via de openslaande tuindeuren direct de tuin in, waardoor binnen en buiten moeiteloos in elkaar overlopen. De combinatie van ruimte, privacy en een kindvriendelijke indeling met volop speelruimte voor de kinderen maakt dit tot een ideale tuin voor elk seizoen. En dankzij de royale afmetingen houd je zelfs bij een eventuele uitbouw nog voldoende tuin over.
Duurzaam en comfortabel wonen
De woning is grotendeels voorzien van kunststof kozijnen met dubbel glas en HR++-beglazing. In 2021 is de gevel na-geïsoleerd (met certificaat), en in 2023 zijn er 8 zonnepanelen geplaatst (huur). Daarmee is de woning energiezuinig en klaar voor de toekomst. Daarnaast is het dak van de uitbouw in 2023 vernieuwd, en zijn ook de nokpannen (2021) en de erker aangepakt. Kortom: een woning die met zorg is onderhouden en waar je zonder grote investeringen zo in kunt trekken.
Bijzonderheden
- Karaktervolle twee-onder-een-kapwoning uit de jaren ’30
- Badkamer vernieuwd in 2021
- Dakkapel (2021/2022) en vernieuwde keuken (2019)
- Spouwmuurisolatie (2021) en grotendeels kunststof kozijnen
- 8 zonnepanelen (2023, huur via Zelfstroom – overdraagbaar)
- Ruime overkapping met schuur
- Eigen achterom
- Praktische zolder met extra slaapkamer
Kortom: een karaktervolle en goed onderhouden woning waar sfeer, comfort en duurzaamheid op een mooie manier samenkomen. Zie jij jezelf hier al wonen? Plan dan enthousiast je bezichtiging via elferinksweg36. nl
en ontdek zelf de charme van deze heerlijke woning in Enschede!
Overdracht
- Vraagprijs
- € 335.000 k.k.
- Status
- Onder optie
- Aanvaarding
- In overleg
Bouw
- Object type
- Eengezinswoning, 2 onder 1 kapwoning
- Soort bouw
- Bestaande bouw
- Bouwjaar
- 1936
- Soort dak
- Zadeldak bedekt met pannen
Oppervlakte en inhoud
- Woonoppervlakte
- 88 m²
- Perceeloppervlakte
- 197 m²
- Inhoud
- 304 m³
- Overige inpandige ruimte
- 2 m²
- Externe bergruimte
- 26 m²
Indeling
- Aantal kamers
- 4 kamers (3 slaapkamers)
- Aantal badkamers
- 1 badkamer
- Badkamervoorzieningen
- Ligbad, toilet, wastafel, wastafelmeubel, inloopdouche
- Aantal woonlagen
- 3 woonlagen
- Voorzieningen
- Glasvezel kabel, zonnepanelen, natuurlijke ventilatie
Energie
- Energielabel
- C
- Energielabel registratie
- 15-10-2025
- Isolatie
- Dakisolatie, muurisolatie, dubbel glas
- Verwarming
- Cv-ketel
- Warm water
- Cv-ketel
- Cv ketel
- Intergas combiketel gas gestookt uit 2009 (eigendom)
Buitenruimte
- Ligging
- In woonwijk
- Tuin
- Achtertuin, voortuin
- Afmetingen achtertuin
- 72 m² (0.12 meter diep en 0.06 meter breed)
- ligging tuin
- Gelegen op het noordwesten en bereikbaar via achterom
Bergruimte
- Schuur / berging
- Vrijstaande houten berging
- Voorzieningen
- Voorzien van elektra
Garage
- Soort garage
- Geen garage
Parkeergelegenheid
- Soort parkeergelegenheid
- Openbaar parkeren
Energieverbruik in Enschede
Energielabel deze woning
Energielabel C
Publicatie energielabel: 15-10-2025
Stroomverbruik per jaar
(Gemiddelde twee onder een kap in Enschede)
Gasverbruik per jaar
(Gemiddelde twee onder een kap in Enschede)
* Cijfers zijn afkomstig van het CBS en bedoeld als indicatie en kunnen verschillen voor deze woning
Indicatie hypotheeklasten
Eigen inleg:
Spaargeld / overwaarde
Rente:
Laagste 10-jaars rente
Laagste 10-jaars rente
2,78% - Centraal Beheer Groen... - NHG
3,04% - Centraal Beheer Groen... - 80%
Laagste 20-jaars rente
3,29% - Centraal Beheer Groen... - NHG
3,52% - Centraal Beheer Groen... - 80%
Laagste 30-jaars rente
3,41% - Centraal Beheer Groen... - NHG
3,7% - Argenta Groen Hypotheek... - 80%
Hypotheek:
Bruto maandlasten: € 0 p/m
Netto maandlasten: € 0 p/m
Hoe berekenen we dit?
Het rentepercentage is gebaseerd op de laagste 10 jaars vaste rente voor één hypotheekdeel. De vermelde rente (2.78% met NHG) is gecontroleerd op 26-03-2026. Deze berekening is gebaseerd op een annuïteitenhypotheek die volledig wordt afgelost, waarbij de maandlasten gedurende de gehele looptijd gelijk blijven. De werkelijke rente en netto maandlasten kunnen variëren, afhankelijk van uw persoonlijke situatie en de hypotheekverstrekker. Raadpleeg een financieel adviseur voor een nauwkeurige berekening en advies. Aan deze berekening kunnen geen rechten worden ontleend; het dient enkel als indicatie.
Documentatie
Kadastrale kaart
Leefomgeving
Plattegronden PDF
Lijst van zaken
Vragenlijst deel B
WOZ waarderapport
BAG uittreksel
Brochure
Bezoek onze website
Bezichtiging
Bod uitbrengen
Waardebepaling
Zoekopdracht
Alles downloaden
Zonnegrenzen bekijken
Op de kaart
Inwoners in Enschede
Cijfers voor postcodegebied 7545
- Totaal aantal inwoners
- 158255 inwoners
- Mannen
- 51%
- Vrouwen
- 49%
Inwoners in Enschede
Cijfers voor postcodegebied 7545
- tot 15 jaar
- 14%
- 15 tot 25 jaar
- 16%
- 25 tot 35 jaar
- 25%
- 45 tot 65 jaar
- 27%
- 65 en ouder
- 18%
Huishoudens in Enschede
Cijfers voor postcodegebied 7545
- Eenpersoons zonder kinderen
- 46%
- Meerpersoons zonder kinderen
- 25%
- Huishoudens zonder kinderen
- 71%
Huishoudens in Enschede
Cijfers voor postcodegebied 7545
- Huishoudens met één kind
- 9%
- Huishoudens met meerdere kinderen
- 20%
- Huishoudens met kinderen
- 29%
Woningen in Enschede
Cijfers voor postcodegebied 7545
- Woningen voor 1945
- 34%
- Woningen tussen 1945 en 1965
- 34%
- Woningen tussen 1965 en 1975
- 4%
- Woningen tussen 1975 en 1985
- 2%
- Woningen tussen 1985 en 1995
- 9%
Woningen in Enschede
Cijfers voor postcodegebied 7545
- Woningen tussen 1995 en 2005
- 9%
- Woningen tussen 2005 en 2015
- 7%
- Woningen na 2015
- 1%
- Huurwoningen
- 60%
- Koopwoningen
- 40%
Overige in Enschede
Cijfers voor postcodegebied 7545
- Gemiddelde WOZ waarde
- € 168.000,-
- Personen onder de 65 met uitkering
- 14%
Overige in Enschede
Cijfers voor postcodegebied 7545
- Adressen per km²
- 2538
- Stedelijkheid (schaal 1 op 5)
- 100%
Korte feiten over Enschede
Enschede is een stad en gemeente in Twente, in het oosten van de Nederlandse provincie Overijssel.
Kemps Makelaarshuis de makelaar van nu!
De moderne, no-nonsense makelaar van Twente. Waar persoonlijke aandacht centraal staat in onze dagelijkse dienstverlening. Het aan- en/of verkopen van een woning is een spannende gebeurtenis. Dan is het fijn wanneer er een vriend “Homi makelaar” naast je staat die zich hard maakt voor jouw persoonlijk belangen! Dagelijks zijn wij succesvol actief op de Twentse woningmarkt. Je kunt ons o.a. vinden in de plaatsen Enschede, Hengelo & Haaksbergen.
Ieder persoon en elke woning is uniek, daarom hanteren wij altijd een op maat gemaakt plan dat perfect aansluit op jouw woonwensen. Door middel van innovatie en geavanceerde technologie streven wij naar een stressvrije en plezierige ervaring voor onze klanten. Door middel van onze op data gebaseerde strategie bereiken we een uitgebreider publiek dan anderen, en dit gebeurt altijd met een persoonlijke en doelgerichte aanpak, zowel online als offline. Als je vragen hebt over de vastgoedmarkt of wil je meer weten over jouw woning, staan wij altijd klaar om je te helpen.
Nieuwste reviews
-
Robert
Marco Kemps van Homi makelaars Is een nette professionele en een gedreven makelaar die alles goed Geregeld heeft , wat hij zegt maakt hij wa...
-
Huseyin Ozdemir
Na twee bezichtigingen met Marco hebben we ons nieuwe huis gekocht. We waren onder de indruk van zijn vriendelijkheid en de tijd die hij nam...
-
Judy Diao
Marco Kemps is een geweldige makelaar! Ik heb Marco aangenomen als onze aankoop en verkoopmakelaar. Onze samenwerking duurde in totaal 7 maa...